Sistema Fotovoltaico Solis: Projeto e Instalação
- marketing146759
- 31 de mar. de 2023
- 2 min de leitura
Atualizado: 14 de out. de 2025
Conheça os diferenciais dos projetos e instalações fotovoltaicas Solis

O projeto e a instalação de um sistema fotovoltaico são peças fundamentais para compor uma obra de alto padrão.
Nossa equipe é preparada para atender seus clientes desde o projeto até finalização da instalação do seu sistema, além de contar com um pós-venda especializado.
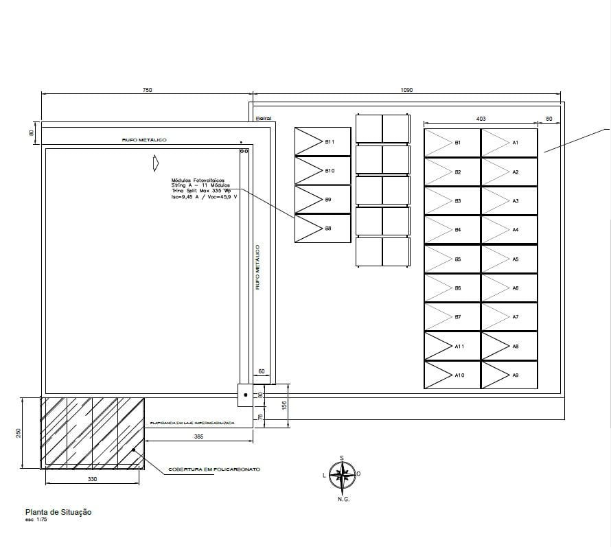
A Engenharia de Aplicação Solis realiza dimensionamento técnico e projeto executivo completo, que inclui estudo de inserção e estudo de sombreamento, quando necessário.
Projeto Fotovoltaico
O projeto executivo fotovoltaico é fundamental para homologar o sistema nas distribuidoras de energia. Ele tem por objetivo detalhar o arranjo físico de módulos, rota de cabos, posição de inversores, String Box, quadro de proteção CA e local das hastes de aterramento.

Instalação Fotovoltaica
As instalações são realizadas conforme projeto desenvolvido pela equipe de Engenharia de Aplicação Solis. Todos os nossos projetos são desenvolvidos em conjunto com o cliente e/ou responsável pela obra, garantindo o melhor desempenho do sistema fotovoltaico e a viabilidade das manutenções futuras sem causar danos aos equipamentos, respeitando as normas de segurança que influenciam na qualidade da instalação do sistema e na integridade da equipe de instalação.

A Solis conta com profissionais qualificados e certificados, com anos de experiência, que ficam responsáveis por todo o processo de instalação do sistema fotovoltaico.
A equipe técnica é treinada com processos de instalação padronizados, certificados e atualizados que fornecem segurança nas instalações, atuando com medidas preventivas e corretivas, se necessárias.
Além disso, trabalham de forma rápida e ágil com olhar atento aos acabamentos, deixando o sistema, além de funcional, esteticamente bem executado.
A Solis Solar oferece um kit fotovoltaico completo com módulos e inversores de alta performance que ainda inclui quadro de proteção para corrente contínua e corrente alternada, haste de aterramento e material de acabamento para que seu sistema atenda todas as normas de segurança.
Todos os materiais são de alta qualidade, principalmente os utilizados no processo de instalação. Isso garante a qualidade da obra e a segurança da equipe.
Por isso, é de extrema importância escolher uma empresa com profissionais de excelência para a execução de um bom projeto e a prestação de todos os cuidados na instalação do sistema fotovoltaico.
A Solis Solar te oferece tudo isso! Uma empresa com vasta experiência e equipes altamente qualificadas.
Quer maior durabilidade, maior eficiência e a maior garantia do Brasil? Vem pra Solis!
Projeto e Instalação Fotovoltaico Solis
Não deixe de assistir ao nosso vídeo para não restarem dúvidas de que o Sistema Fotovoltaico Solis é a melhor escolha para você.
Gostou do conteúdo? Continue nos acompanhando em nossas redes sociais para não perder nenhuma novidade sobre nossos produtos e serviços.



Comentários